For this project, the studio was tasked with creating a gallery space for the center of downtown Bryan, TX. Bryan, although small, is renowned for its vibrant small-town culture and art. And despite the town’s cultural reputation, there is little space for the community to house and display the works of local artists. Traditionally, the streets of Bryan are closed off on the first Fridays of each month to serve as an active, outdoor marketplace for local artists; while this works well most of the year, it would benefit the town greatly to have some permanent, indoor space to accommodate the town, especially during the brutally hot summers.
The site of the project is an existing, nearly always empty parking lot in the center of the town, adjacent to the railroad that cuts through the city center. The only stipulations for the design of our galleries were square footage requirements for programmed space and ADA compliance. Given the relatively small foot print of the site and the large requirements for square footage, the design needed to be multiple stories, this one aspect would dictate a large portion of the design decisions that went into my project.
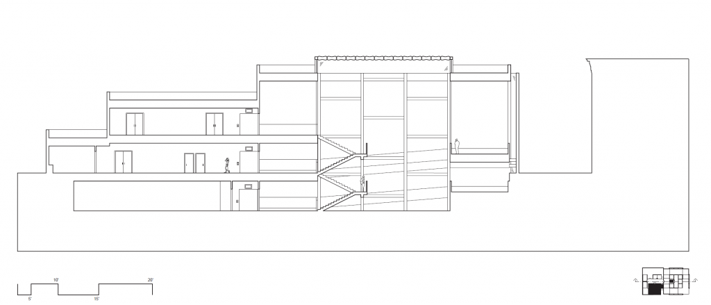
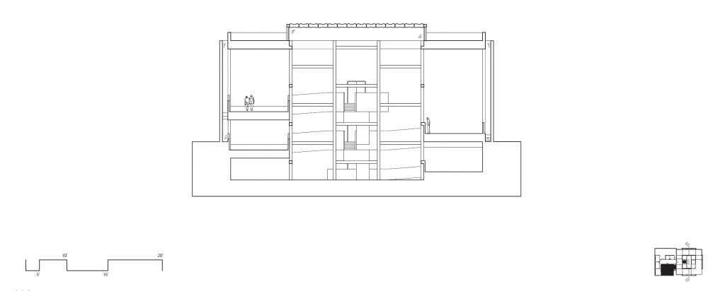
According to ADA, two elevators would be required for a typical two story gallery space. However, given how small the foot print of the building is, and considering how small the budget would be for a public building in Bryan, I felt it a considerable waste to have two elevators. Considering this, I decided to go with an unconventional, three story, open air gallery space, navigated by large ramps. Given the slope requirements for the ramp, the ramp needed to be absurdly long; so long that they needed to act as part of the gallery space themselves. Unintentionally, via code, I ended up with a Frank Lloyd Wright Guggenheim archetype for my design.
Given the unconventionally large and awkward ramp, structure needed to be added to support it. Rather than hide away structure or cantilevering the ramp, a large steel skeleton was added to the center of the space, serving two purposes. Firstly, and most importantly, the skeleton supports the ramp and provides a large, open-air space for three stories worth of space. Secondly, the skeleton serves as novel display space for art, with ample room and areas to hang pieces, displaying them, almost floating, in the large space that occupies the interior of the volume.


















